
Descubre : El Romazal.Tu Escapada Rural
Aquí es donde comienza tu viaje. Conoce El romazal, tu casa rural en Nava de la Asunción. Estamos comprometidos con ofrecerte una estancia de calidad y un servicio excelente. Únete a nosotros y descubre el encanto del turismo rural en un entorno único. Nos alegra que estés aquí para ser parte de nuestra historia.
Bienvenido a El Romazal
Estamos orgullosos de ofrecerte una experiencia auténtica en nuestra casa rural, El Romazal. Explora la tranquilidad y la belleza de Nava de la Asunción. Descubre cómo podemos hacer de tu escapada rural un recuerdo inolvidable.
Nuestros servicios
Actividades al Aire Libre
Disfruta de una variedad de actividades en la naturaleza, desde senderismo hasta ciclismo.
Gastronomía Local
Saborea la auténtica cocina de la región con nuestros platos tradicionales y productos locales.
Que ver a 35 minutos
Celebra tus momentos especiales en un entorno único y memorable.

Acerca de El Romazal
Todo comenzó con el deseo de compartir la belleza de Nava de la Asunción. Como casa rural, nos enorgullecemos de ofrecer una atención personalizada y una dedicación a cada detalle. Nuestro enfoque se basa en la calidad y la autenticidad, garantizando que tu estancia sea una experiencia inolvidable.
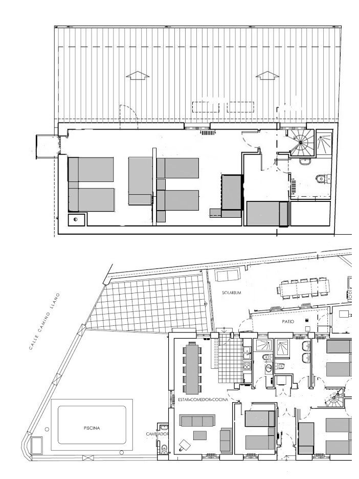
CROQUIS
SEGUNDA
PLANTA
CROQUIS
PRIMERA
PLANTA

Una ubicación privilegiada
En pleno casco urbano de Nava de La Asunción, a 400 metros de la Plaza Mayor, pueden contemplarse magníficas puestas de sol sobre el horizonte


PUNTO
DE RECARGA
PARA COCHES
ELÉCTRICOS
A 7 KM
DE VUT EL ROMAZAL

El eclipse en España
En España, el eclipse se verá en sus últimas fases, pues el fenómeno termina en Baleares, casi en la puesta de sol. Aun así, nuestro país es el mejor lugar del mundo para ver el eclipse, por lo que cabe esperar que hasta nuestro territorio se desplacen numerosos cazadores de eclipses y turistas en general. Se da además la circunstancia de que el eclipse antecede a la noche del máximo de las Pérseidas, por lo que habrá la oportunidad de permanecer en el lugar de observación del eclipse para disfrutar con la lluvia de estrellas. Recordemos que los eclipses de sol necesariamente suceden durante el novilunio, por lo que en la noche del 12 al 13 de agosto de 2026, la Luna no supondrá ningún estorbo para observar los meteoros.
Desde El Romazal podrá observarse el eclipse solar del 12 de agosto de 2026

OBSERVACIÓN DE AVES.
La observación ornitológica es una de las actividades que pueden realizarse en la zona de Nava de la Asunción, en la imágen se incluyen algunas de las especies que pueden avistarse, como la avutarda, el águila imperial y el abejaruco. También los flamencos, que se han reproducido en el entorno los últimos años

PROXIMOS EVENTOS EN NAVA DE LA ASUNCION y ENTORNO
"Un lugar encantador para desconectar y disfrutar de la naturaleza. El servicio fue excelente y la casa muy acogedora."
Ana López
"Una experiencia inolvidable. La casa rural es preciosa y el entorno es perfecto para relajarse y disfrutar de la tranquilidad."
Andrés Laguardia
"Recomendable al 100%. El trato fue excelente y la casa rural superó nuestras expectativas. Volveremos sin dudarlo."
Diana Briz
Contáctanos
Ubicación
Calle Romazal, 18
Nava de la Asuncion, Segovia
40460 España
Crea tu propia página web con Webador